I will make estimates and takeoffs of buildings
About:
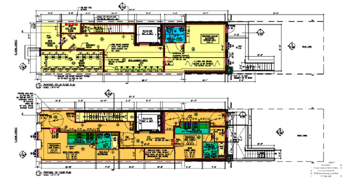
Quantity takeoff of materials of building using bluebeam. It includes- Demolition
- Siteworks (excavation, removal of trees etc)
- Foundations (concrete works, column footings, grade beams etc)
- Masonry works (CMU etc)
- Metal works(metal stud walls, steel beams, steel columns, steel stairs etc)
- Wood plastic & composites (Wooden stud walls, base and wall cabinets, fillers moldings, wood frames and door, millwork, cabinetry etc)
- Thermal and moisture protection (siding, sheathing, downspout, fascia, gutters, shingles, frieze etc)
- Openings (windows & doors with hardware detailing)
- Interior finishes (floor, walls, ceiling, accoustical ceiling, gypsum ceiling etc)
- Exterior finishes (Stucco, stone veneer, brick veneer, siding etc)
- Furnishes ( Countertops, equipments etc)
- Electrical (Electrical fixtures, security system, wiring etc)
- Plumbing (Roughing, plumbing fixtures, bathroom fixtures, kitchen fixtures etc)
- HVAC (fixtures and ducts etc)
Reviews
juanpinelli:Great work!
zuhaib93:Outstanding Experience!
juanpinelli:Great work as always!
zuhaib93:Outstanding Experience!
juanpinelli:Great Work!

No comments:
Post a Comment